Experience Iconic Luxury with Cape Cod Homes NZ
 
 
 

House & Land packages

 

Address: Taitaia Lane Clevedon 

Cape Cod Homes is proud to offer three stunning lifestyle land holdings in which to build on the beautiful Clevedon landscape. 
Available lots are found down the end of a quiet magnolia lined private gated lane and overlook a shared reserve area extending the 6500m2 land area further.
Cape Cod Homes can realise your dream on these perfect house sites. Our team is a collective of established architects, designers, builders and project managers.
Together, from beginning to end we manage your home design and build to deliver you a turn key solution. 

Taitaia1.jpeg
Taitaia3.jpeg
Taitaia4.jpeg
 
161114_30 Audrey road_exterior.jpg
DST-AUDREYROAD0319-9715.jpg
200218_1 Taitaia Lane_ concept 6.jpg
 
DST-AUDREYROAD0319-9411.jpg
DST-AUDREYROAD0319-9455-HDR.jpg
 
 

Cape Cod Homes can offer you a bespoke package or you can choose from existing plans such as The Taitaia or The Audrey.

For all enquires please contact Harriet Pilkington on +64 21 764 034 or email harriet@capecodhomes.co.nz

Contact us
 

The Audrey
Concept floor plan

The-Audrey-plans.jpg
The-Audrey-plans_first-floor.jpg

 

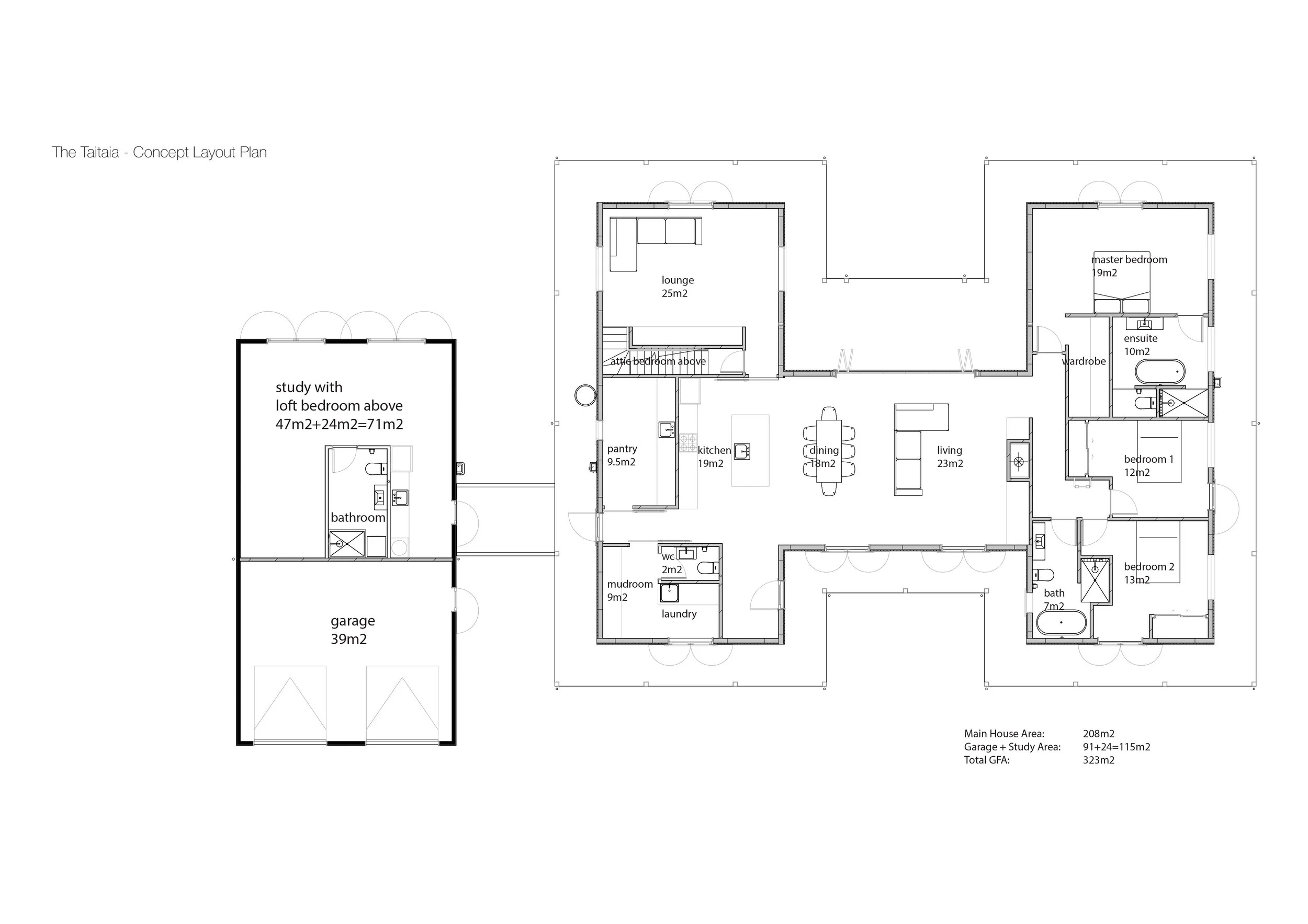
The Taitaia
Concept floor plan

190051_Taitaia-Ln-BC_Floor-Plan_200407-Model-(1).jpg